这是活力网AutoCAD2018 室内设计中级案例应用教程
在本教程里
将会带领大家
完整的绘制一套家装样板房施工图
并将教会大家如何规范化管理图纸
软件高级技巧学习也必不可少
通过本课程的学习
学员基本能够绘制一套完整的室内设计家装施工图
(0基础的学员找客服提供一套AutoCAD2016基础入门课程)
从原始量房图开始讲解到后面的深化阶段
循序渐进 由浅入深 言简意赅
让学习变得更简单
讲师介绍:
May Cheng 室内设计师
活力网室内设计版块明星讲师
专注室内设计和相关软件教学
著有
《AutoCAD2016基础入门教程》
《室内设计AutoCAD2018中级教程》
老师的话:
这不是一套仅仅讲CAD软件操作的课程,而是一套针对于初入室内设计行业,或者想要对室内设计有更多了解的学员提供学习帮助的课程,目的是希望大家学完这套课程后对室内设计行业有了初步认识,也为规范化管理图纸打好基础,当然技巧学习也是必不可少的。
学完这套课程你将学到:
1、AutoCAD软件高级操作技巧
2、施工图制图规范入门
3、用AutoCAD完整绘制施工图&绘图思路
4、施工图完整流程体系
5、彩平图制作思路
6、对室内设计行业初步认知
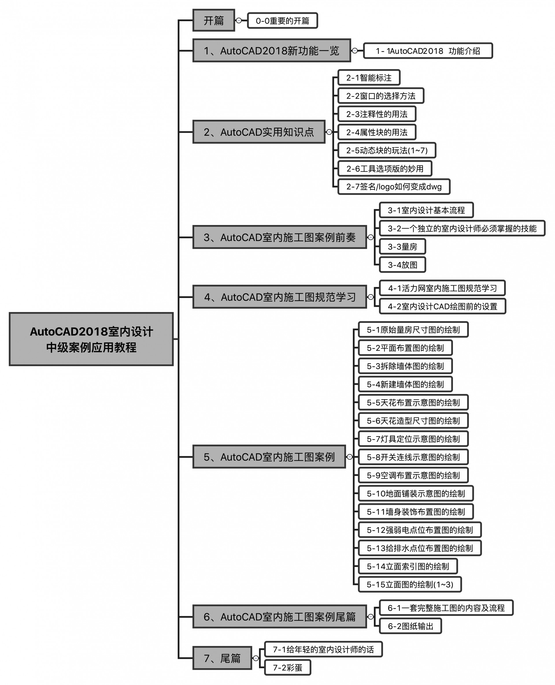
课程大纲:
课程内容
首先我们从课程使用软件版本AutoCAD2018新功能介绍开始
第一章节
由我们已经35周岁的好朋友AutoCAD带领我们走入施工图绘制学习的海洋里
想要了解如何规范化的管理我们的图纸吗?
接下来开始学习
第二章节
一些实用的CAD技巧
打好基础
了解什么是注释性、属性块、动态块、工具选项板
等等
然后我们再融汇运用到案例学习中
第三章节
在我们正式开始绘图前,
我们要学习室内设计的基本流程,
聊聊一个独立的室内设计师必须掌握的职业技能,
如何量房大家也是需要学习的知识点

第四章节
我们要开始学习规范化管理图纸中的规范,
进入到活力网整理的施工图规范学习,
有了规范化管理图纸的思维
第五章
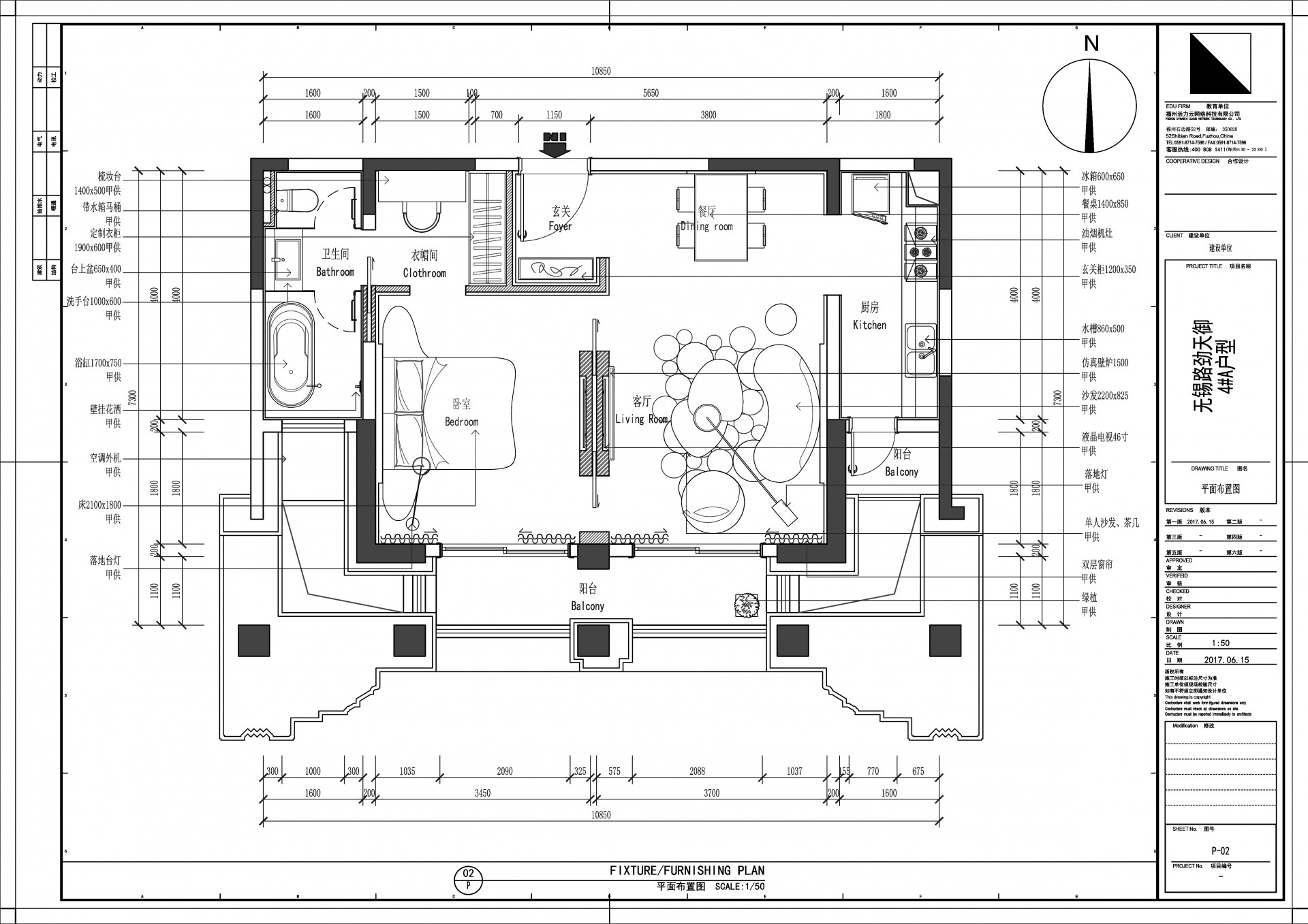
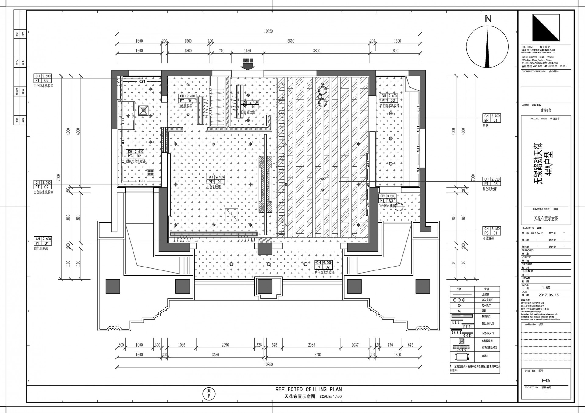
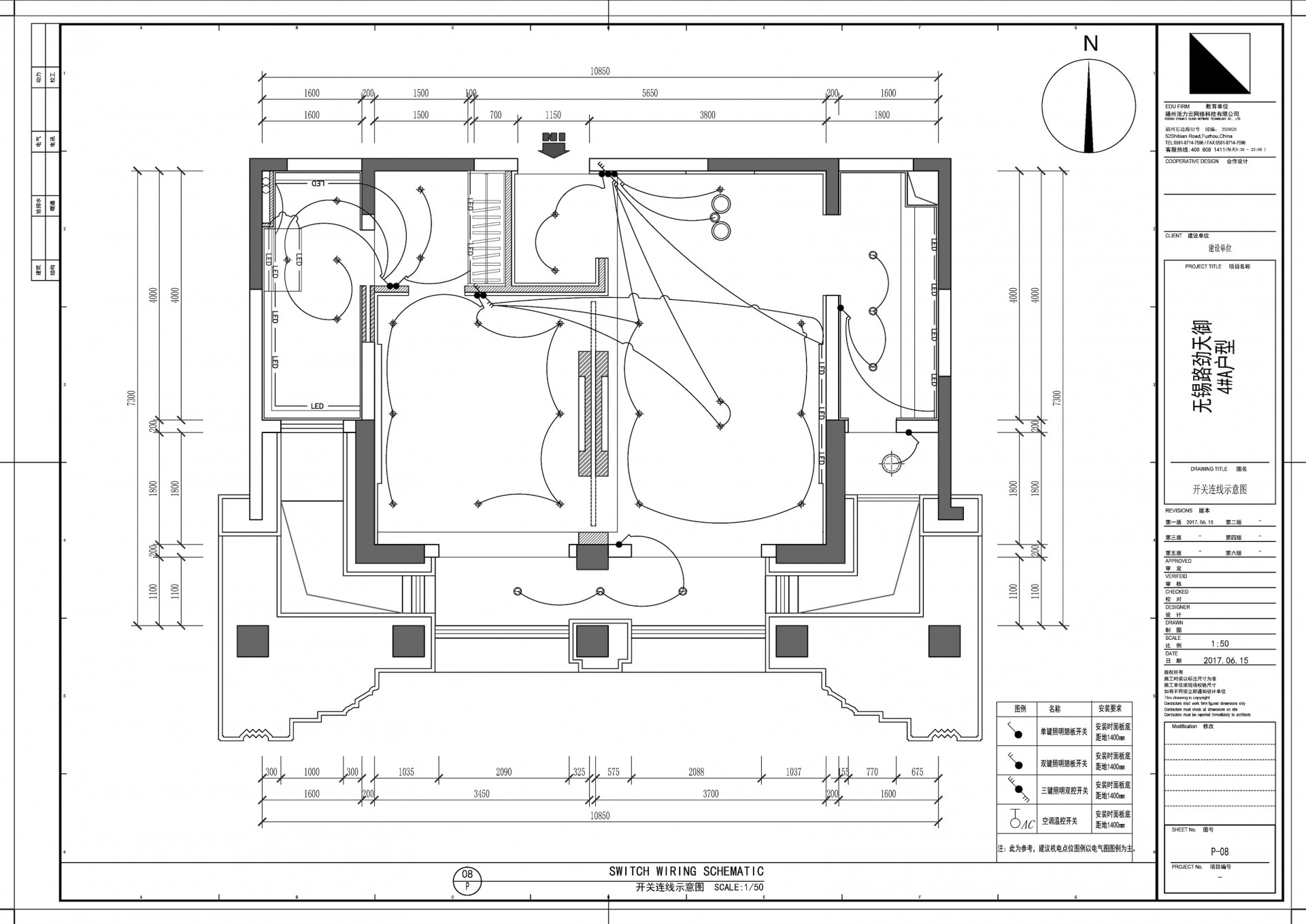
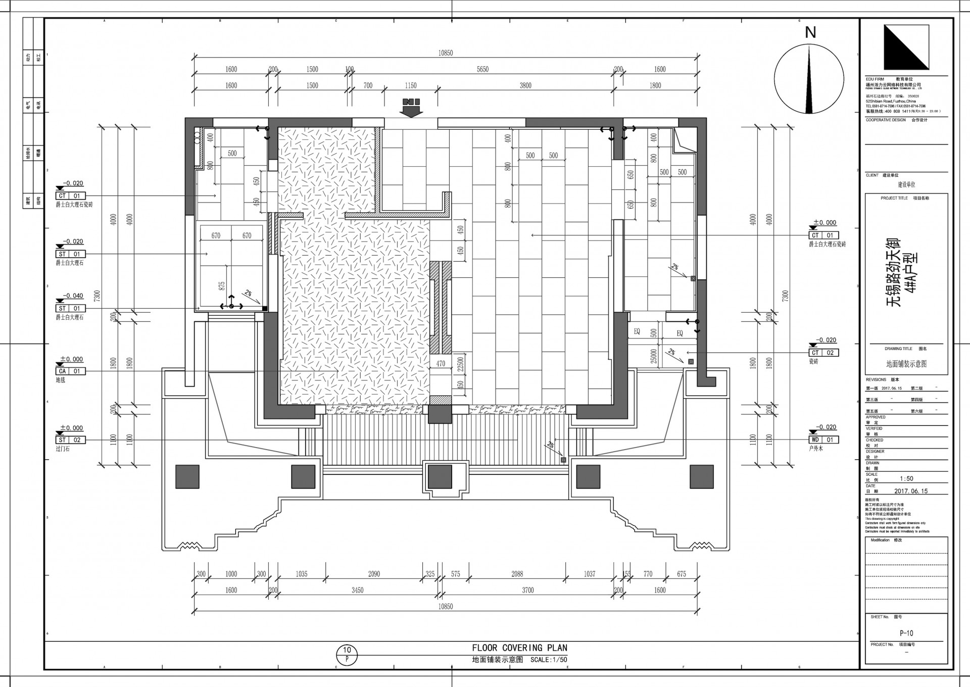
我们正式进入到施工图案例的学习,
结合施工图制图规范,
从原始量房尺寸图开始,
接着学习如何绘制平面布置图,
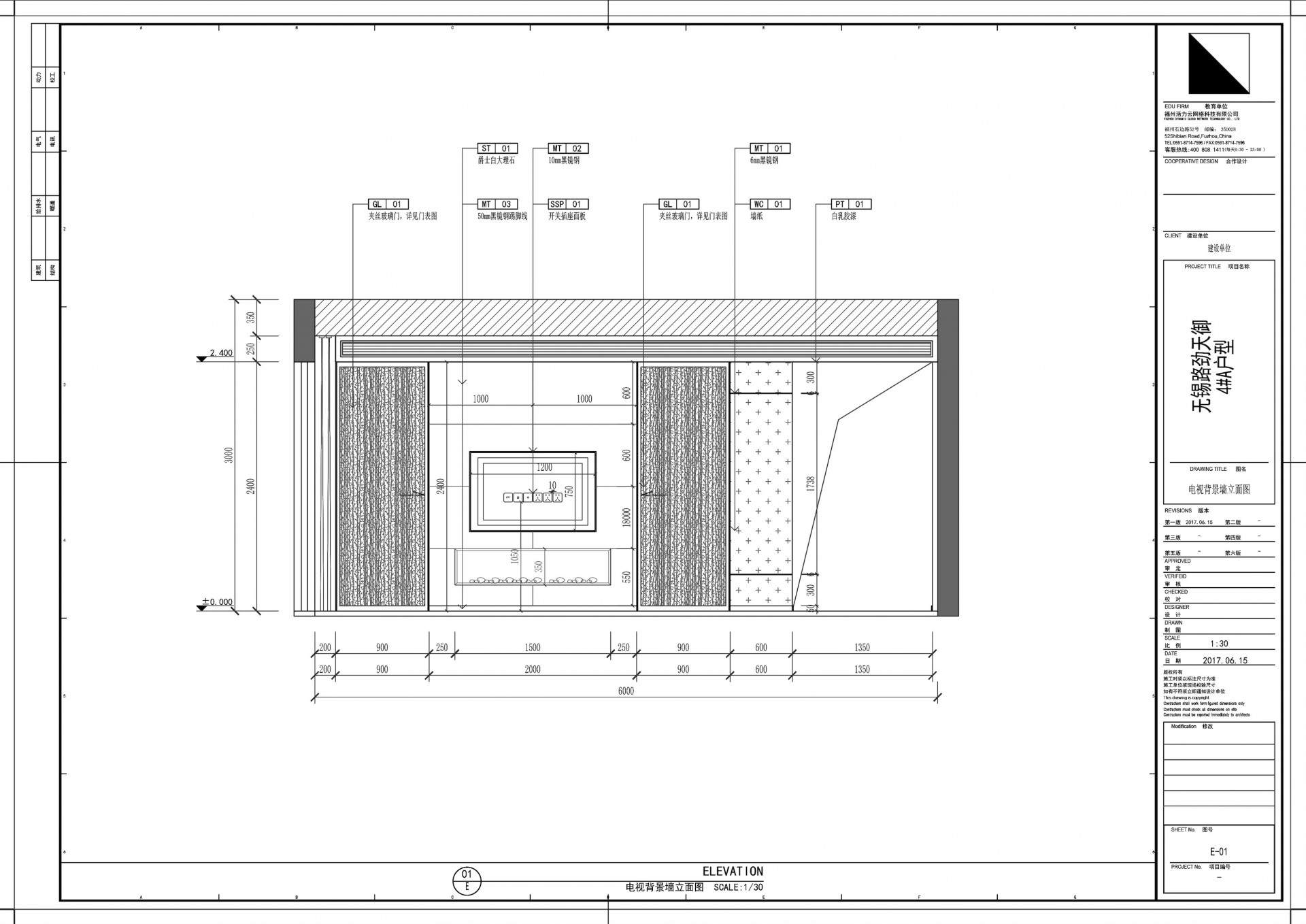
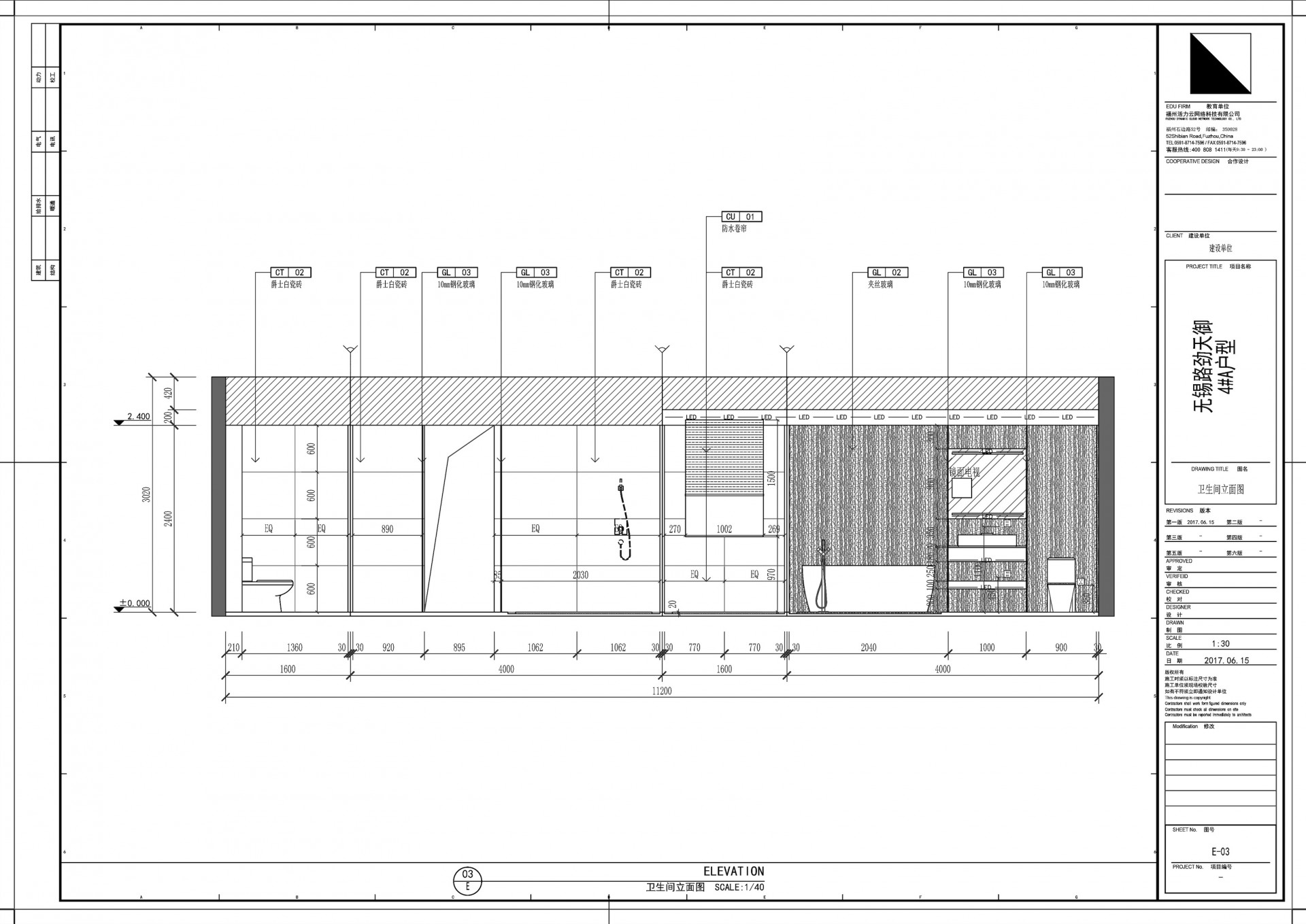
到最后的立面索引图以及立面图的绘制,
结合部分施工工艺进行讲解,
符合人体工程学的方案设计绘图逻辑,
为大家建立一个良好的绘图习惯以及绘图思路





第六章节
进入到施工图案例得尾篇,
了解一套完整施工图的内容及流程,
以及图纸的输出方式方法

第七章节
首先为广大刚入行的年轻室内设计师分享点经验以及建议
最后
进入彩蛋环节,
敲开这颗彩色的蛋,
抛开售楼处提供的土土的彩平图,
教大家如何结合CAD用PS做出漂亮的彩平图

课程软件
AutoCAD2018、PS CC2017
课程形式
录播课程+加密视频
随到随学
课程定价
158元
报名请先咨询,再付款,
咨询时请备注“CAD中级教程”。
客服QQ:826429872
热线:400-808-1411
(说明:活力网会员免费学习→传送门)
或支付宝转帐>>
帐号:caigle@zingcloud.net
户名:福州活力云网络科技有限公司
从小白到高手的一路上
一定有很多需要攻克的问题
站在巨人的肩膀学习不失为一种好方法
想要更快提升?
(点击上方文字可查看高手班详情)
MayCheng老师期待和你一起成为高手
请搜索微信号Caigle01或扫描以下二维码
面对面咨询课程&交流软件技术




会员评论(0)