登录
忘记密码?
其他方式登录

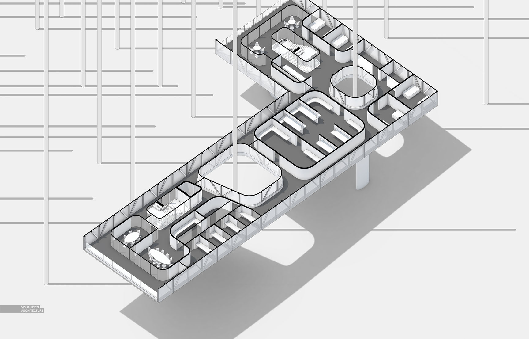
倾斜楼层平面

作者:Alex Hogrefe的个人博客 译/活力网 Final 2017-03-16

文/Alex Hogrefe  译/活力网 Final

本文译自Alex Hogrefe的个人博客visualizingarchitecture.com的教程
原文链接:https://visualizingarchitecture.com/oblique-floor-plans/

斜层平面:

我想生成比标准图纸包含更多信息量的楼层平面图,以继续我的实验室研究设计工作。因此,我用很多年前使用过的Sketchup模型和技术,把楼板平面图变成了斜投影图纸。使用这种方法,无法让不扭曲的平面应用到固定的模数上。尽管这样,与二维平面不同的是,在墙体材料和构造的接合处会有更多三维的感觉。

下面是这一插图的快速分解:


1.编辑底图&渲染

Sketch up 线稿

V-ray Ambient Occlusion(AO)渲染(在后期的很多情况下,使用白色覆盖材质,加上AO的素模渲染,在PS中用正片叠底叠加到自己后期效果图上,会增加图面的细节,译者注。)

V-ray Claw渲染

三层图纸的叠加:我使用了三张基础的图像完了绝大部分内容,用了一张从Sketch up导出的线稿,一张V-ray渲染的AO图像,和一张Clay渲染图,然后我在Sketch up结合得到了上述的所有图像,线稿和AO图增加了几何体交界处的细节。

2.剖切

这张图像重点是要描述平面的设计,因此,我想要表达剖切的部分,所以我在Photoshop中使用黑色画笔涂抹剖切的部分。

3.额外细节

我将地板涂成了深灰为了它和墙面有更好的对比,此外更抽象意义上的引入了枝条,代表着树木,也给图像增添了纹理。

4.拉伸

到这一步,我在添加以上的文本部分之前将图像进行了拉伸,所以,这一图像的制作过程在这里就可以为您呈现了。

注释和后期调色

最后,我用Topaz做了一些注释编辑和色彩调整,我估计当我为了发布这个项目完成最后工作的时候,色调还是会有所改变。

Caigle将与你一同探讨建筑可视化技术

请搜索微信号Caigles或扫描以下二维码

会员评论(0)

请先登录
验证码: 看不清楚,换一张