大家好,今天给大家介绍一下我的建筑师男神
Nick Sonder(尼克·桑德)
怎么说呐?
他可以说是目前 SketchUp & LayOut
建筑设计施工图界的一位扛把子!
就是下面这位大叔
是不是满脸沧桑?
设计师嘛 你懂的(手动滑稽)
为什么说他是扛把子?
不要急 继续往下看
首先
SketchUp官方宣传LayOut的案例
都是用他的作品
(SketchUp官方网站)
其次
他参与过SketchUp官方组织的
许多关于LayOut的活动。
并且
已经与官方形成长期合作,
推广LayOut的应用。
第四点
……
就上面几点还不能说明问题吗?嘿嘿
(与官方扯上关系的还能有错吗?)
Nick大神已经利用
SU & LO 绘制的施工图完成许多项目!
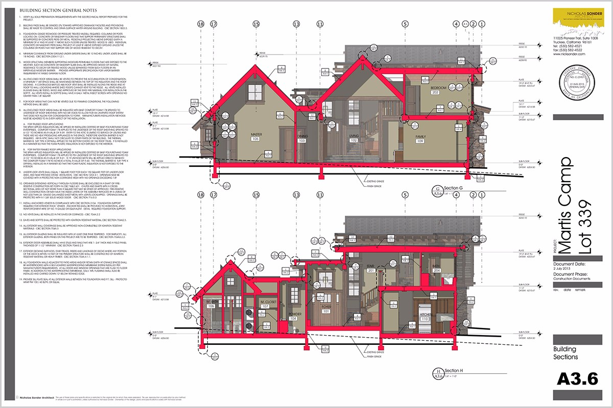
下面就是他用 SU&LO 完成的一个项目











这个项目的建筑设计、室内设计
都是由他本人完成的。
看完项目照片,
接下来是施工图(前方高能预警!)










是不是感觉"So Cool"
光看图片还不够过瘾!
我们再用一个视频深入了解一下
SU & LO 施工图的可行性。
有很多设计师朋友可能质疑很久
SU & LO 究竟能不能应用到实际工作中?
大家通过这个视频,
或许能找到答案 解开心中的疑惑!
翻译:活力网—吕亮
校对:活力网—阿泰
刚入设计圈(坑)的
建筑设计狮或者室内设计狮,
或多或少都会对施工图产生莫名的恐惧。
因为他很枯燥、很难
据调查,相关专业毕业生,
出来找的第一份工作
最讨厌、最反感的就是
画施工图
因为传统CAD施工图是二维的图纸,
且图纸与图纸之间没有联动关系。
修改一张图纸,
其他图纸也必须手动一张一张修改,
相对枯燥、乏味。
那么……
不妨大家可以尝试一下用SU & LO绘制施工图。
其实,Nick大神感动笔者的
不仅仅是漂亮的图纸和扎实的设计功底,
更让笔者感动的是——
Nick大神 勇于创新,敢于尝试新鲜事物的精神
Nick大神以及他所从事的工作就简单的说到这里。
如果大家还想对他与他的作品有更多的了解
可以在Youtube上搜索他的视频!
好吧 说了这么多
那 SU & LO 施工图在中国哪里可以学到?
那必须是活力网
如果你在从事室内设计
而且所涉及的项目都是中小型项目
并且有打算成立自己的设计工作室
或者你是一名独立设计师的话
那恭喜你!!!
你很适合我们的课程!
10月30日即将开课!
单击下方图片了解课程详情▼
活力网也要做 SU & LO 室内设计施工图
大中华区的扛把子!!!
请扫以下二维码添加微信号:Caigle01
面对面交流LayOut等软件技术问题




会员评论(0)