简单点,说话的方式简单点——薛之谦
小编很荣幸的与你一起
走进活力网AutoCAD高手班1期
看见AutoCAD高手班这些字眼
是否第一反应是干巴巴的施工图毫无新意?
感觉好方???
来首音乐放松一下吧
下面由小编跟大家介绍这套不一样的系统课程
(一)课程大纲
基础入门、施工图制图规范、施工图绘制阶段
施工图流程&报价体系
还有最后的分享交流及彩蛋环节
(二)详细介绍
?基础入门
AutoCAD在室内设计领域的应用
解决如何分图层
设置CAD以及图纸常用的布图方式
当然技巧学习是必不可少的!
?施工图制图规范
室内设计施工图规范乃绘制施工图之根本
苦于国家没有争对于室内设计行业制图的详细规范说明
乃至于形成了每个设计公司都自成规范的现象
那么我们该如何学习呢?
由活力网结合各大公司制图规范
以及
《GB/T50001-2010房屋建筑制图统一标准》
融合整理的
《室内设计施工图制图规范建议(第二版)》
应用于后期施工图绘制
解决大家去到各个公司难以很快适应公司规范制图的困扰
提高工作效率
?施工图绘制阶段
从平面系统图开始
包括平面方案布置、拆砌墙、天花、地面、
水电、中央空调、中央净水、新风系统等相关知识。
接着学习主要空间的立面图
最后进入到平、天、地几个重点的大样节点学习




平面图不够直观,没有空间想象力怎么办?
我们会结合SU模型以及现场高清照片来进行讲解
增强大家的空间想象力和理解能力

?施工图流程&报价体系
结束了完整的施工图绘制过程后
从完整施工图出发
讲解施工图的流程,一个完整的项目工作流程
常见修改、注意事项以及图纸的输出
当然别忘了
学习室内设计公司常用报价体系
甲方有言:不会控制预算的设计师不是好设计师

?分享交流
主要是经验分享交流
常见设计公司以及室内设计行业职位扫盲
针对初入室内设计行业的学员
学完这套课程后
在学会规范化管理图纸的基础上
对室内设计行业有了初步认识
找准自己的方向
(三)案例展示
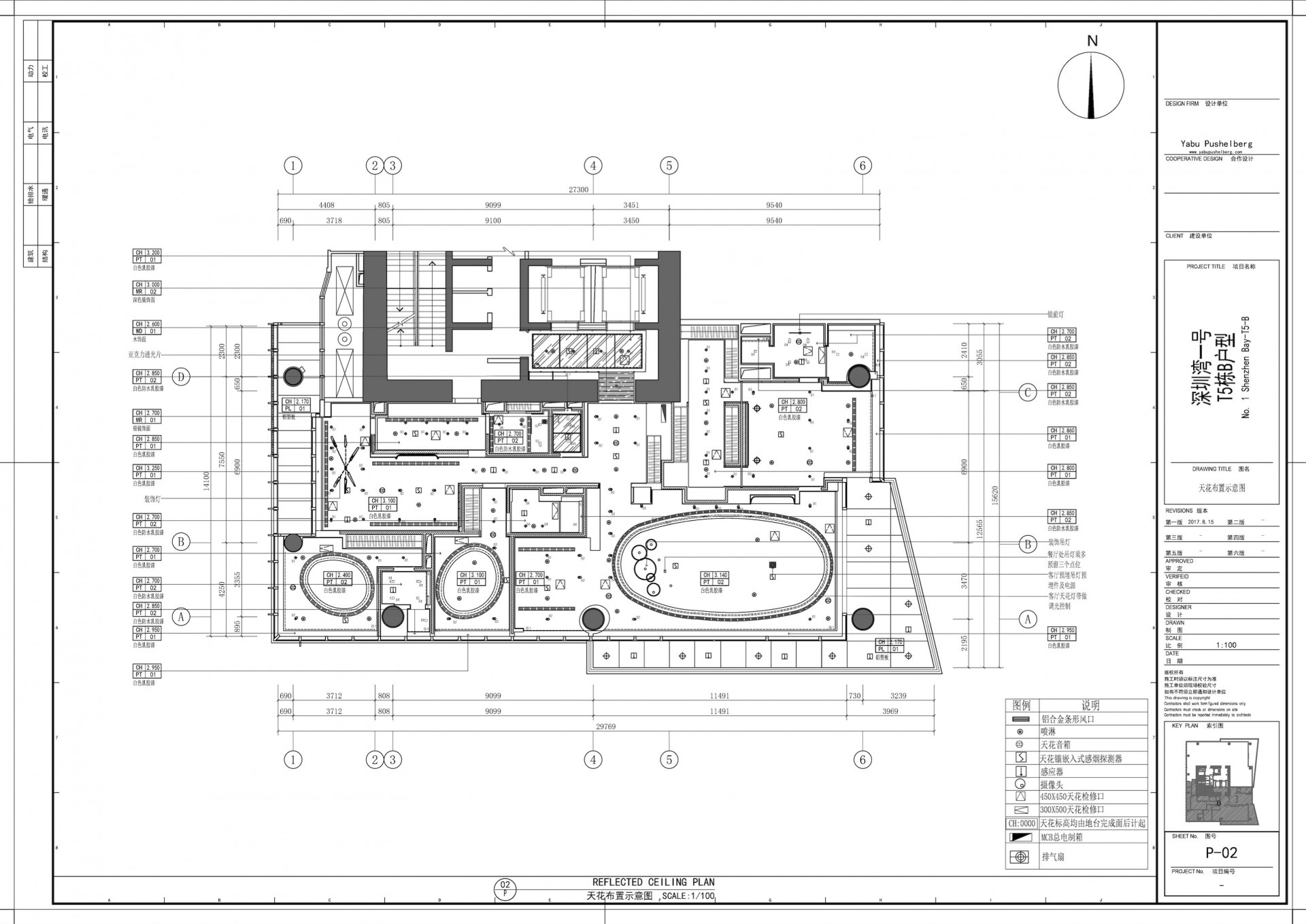
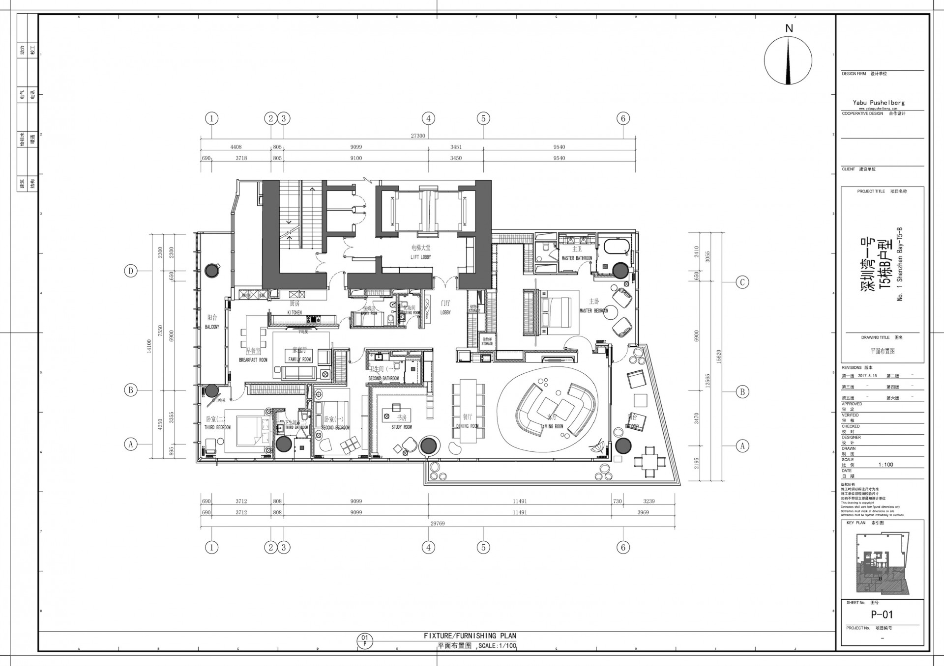
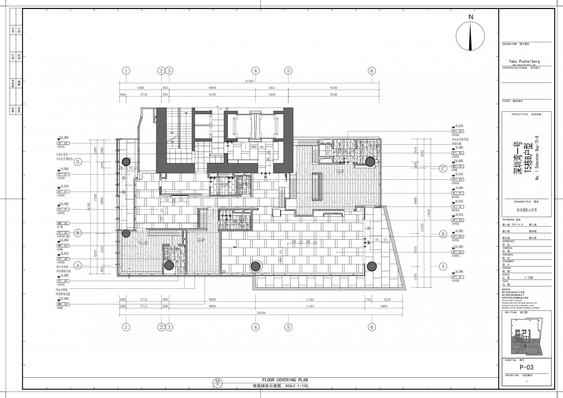
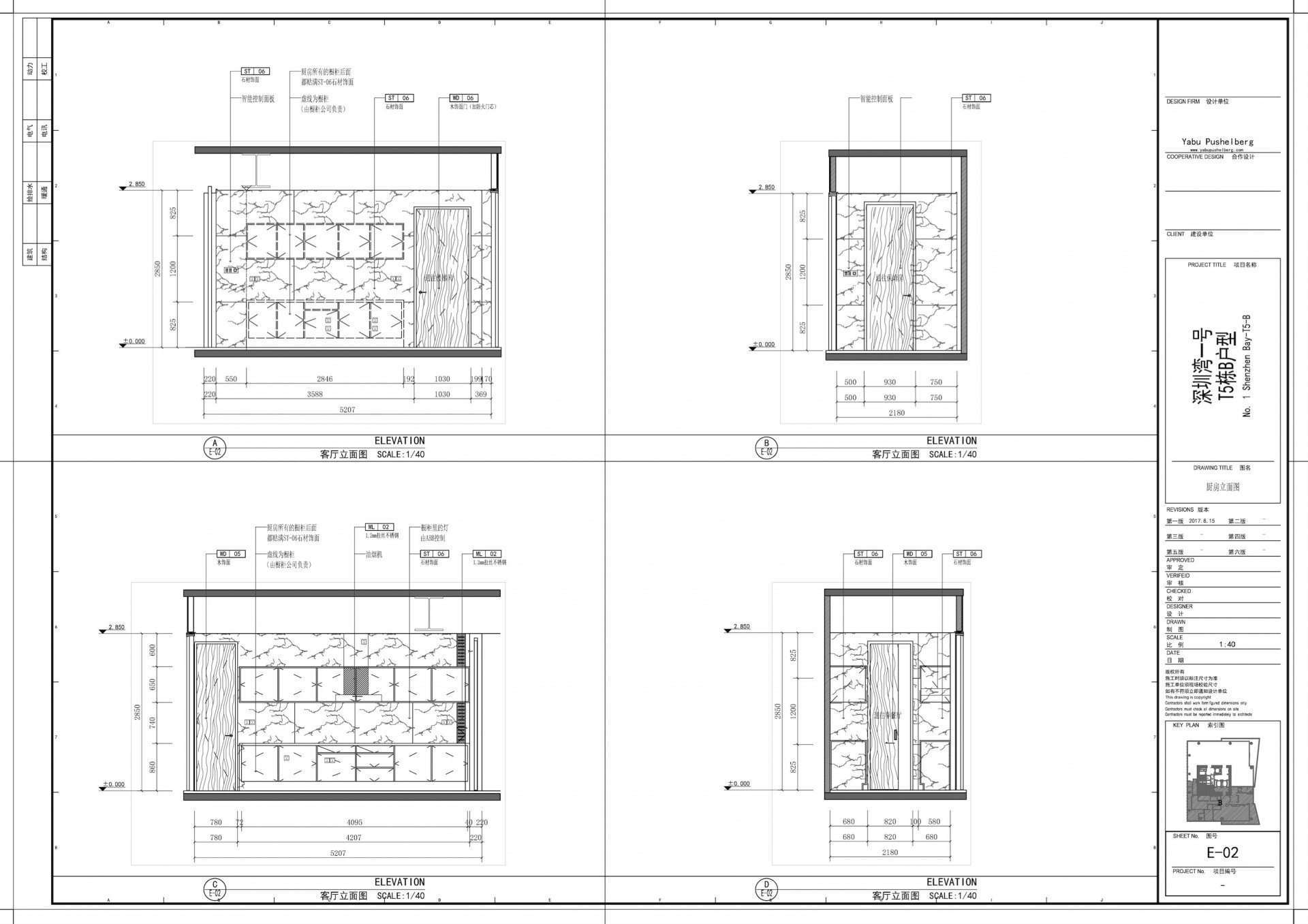
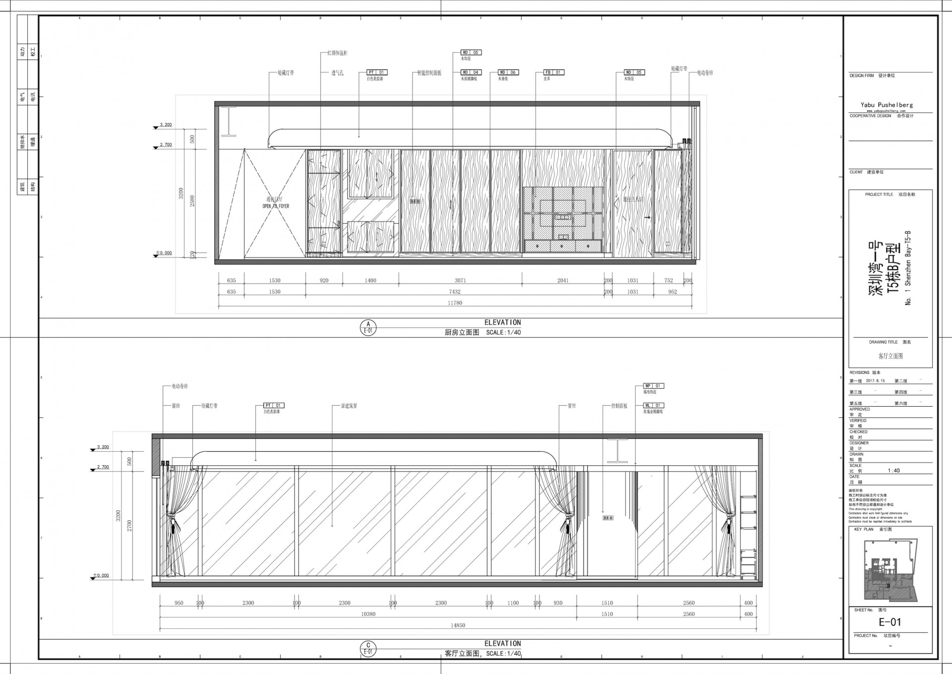
·深圳湾壹号
深圳湾壹号——T5栋B户型(官方摄影)
设计方:TABU PUSHELBERG
施工图深化方:深圳市城建环艺装饰工程有限公司



(以上摄影图片来源于网络)
·案例SU鸟瞰图
(四)课程彩蛋
?彩蛋一
学习室内设计的学员大多对是否学习效果图而犹豫不决
什么是效果图?
效果图是来做什么的?
如何做出效果图?
课堂上会为大家一一解决这些疑问
并且
特邀王耀萱老师来此次高手班课程
由他分享客厅效果图的打光
与
VRay材质设置的一些小技巧
制作软件:SketchUp+VRay3.4 for SketchUp+PS
作者:王耀萱
?彩蛋二
类似扁平化室内彩平图PS制作技巧分享
没有对比就没有伤害
?彩蛋三
MARS沉浸式效果图初探
MARS是由光辉城市基于UE4引擎
开发的次世代沉浸式效果图软件
它不是简单的VR全景效果图
它能让你对自己的项目有第一人称射击一般的体验
让汇报方案进入一个全新的时代
(五)讲师介绍
May Cheng 室内设计师
活力网室内设计版块明星讲师
专注室内设计和相关软件教学
著有
《AutoCAD2016基础入门教程》
《室内设计AutoCAD2018中级教程》
(六)课程价格&日期
定价:1199元
活动价格
前1-10名:999元
(150元优惠+活动转发50元=200元优惠)
前11-20名:1099元
(50元优惠+活动转发50元=100元优惠)
开课日期
2017年9月18日-10月18日
(每周一、三、五晚20:00-22:00)
节假日按国家法定日期调课
注:转发活力网TV微信公众号课程文章至微博、朋友圈、微信群、QQ群、QQ空间任意平台,截图给QQ客服,方可享受活动转发优惠;团购优惠可咨询QQ客服,最终解释权归活力网所有。
报名请先咨询,再付款,咨询时请备注“高手班”。
客服QQ:826429872
热线:400-808-1411
《AutoCAD2018 室内设计施工图高手班一期》
--------------------------------------------------------------------------
传统与新潮的交辉
《SketchUp&LayOut室内设计施工图高手班一期》
《AutoCAD2018 高手班一期》&《SketchUp&LayOut高手班一期》
一起报, 更优惠!
或支付宝转帐:
帐号:caigle@zingcloud.net
户名:福州活力云网络科技有限公司
请搜索微信号Caigle01或扫描以下二维码
面对面咨询课程&交流软件技术




会员评论(0)